ELETTRA SRL AEG - AEGPVQI80-2R Q.INTERF.CEI 0-21 3F+N 80KW 2 INVERTER - PVQI80-2R

Melden Sie sich an, um Preise und Verfügbarkeit anzuzeigen
Packung
1 ST
EAN
8058951900575
Artikelnummer
AEGPVQI80-2R
Herstellernummer
PVQI80-2R
Hersteller
ETT
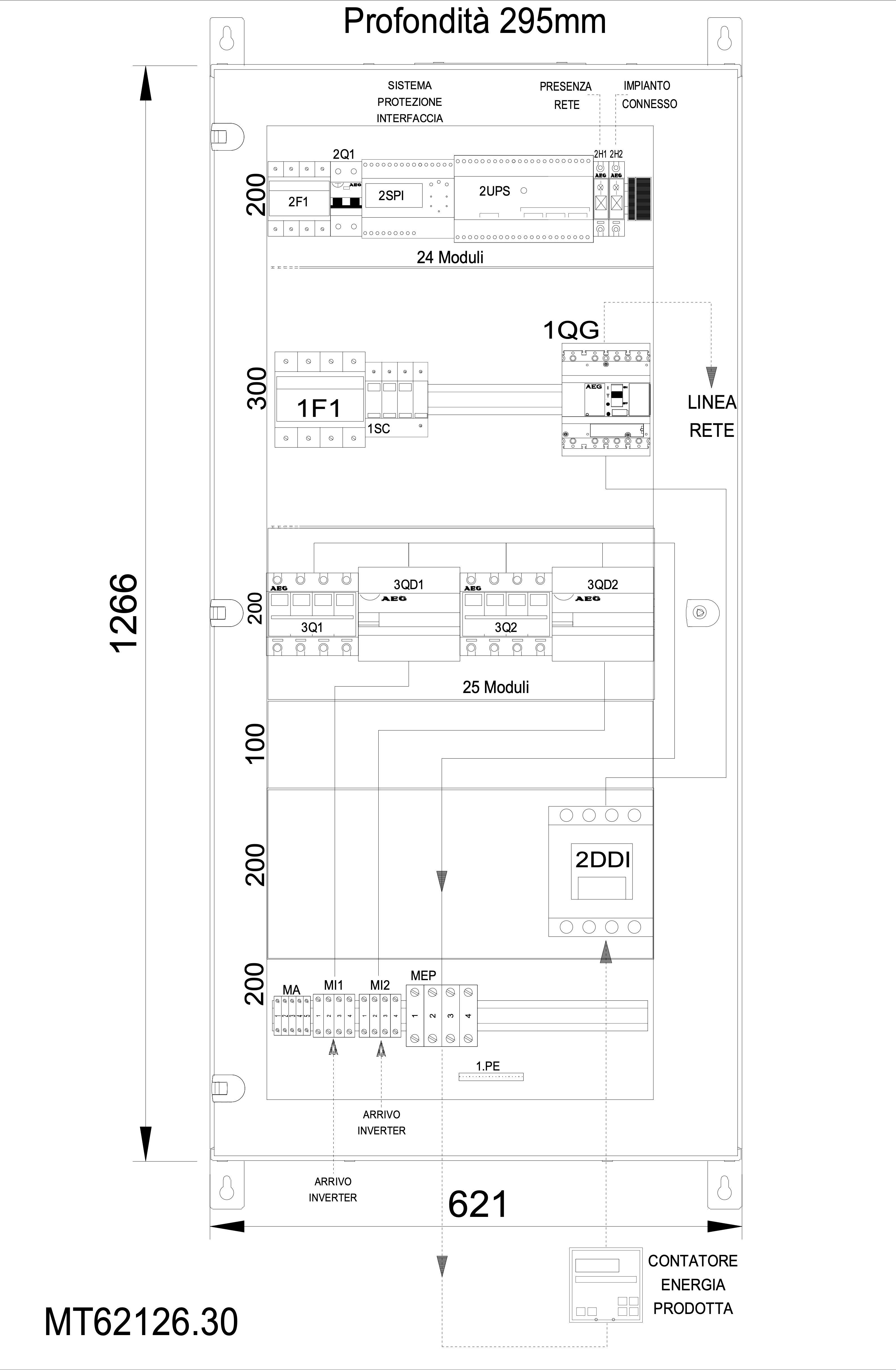
Quadro interfaccia CEI 0-21 per impianti fotovoltaici di potenza limite 80kW. Il quadro è composto da: interruttore automatico magnetotermico 4x160A 18kA + rincalzo, protezioni inverter tramite interruttore magnetotermico differenziale in classe A, contattore 4P 140A AC-3, scaricatore di Tipo 2, relè interfaccia NA003 con soccorritore secondo CEI 0-21, interrutore magnetotermico differenziale per protezione ausiliari, lampade di presenza tensione e impianto connesso. Tutti i componenti sono racchiusi all'interno di un contenitore in metallo con porta in vetro IP55 LxHxP 620x1260x295mm.



